Laguna Skypark Elara / 2 спальни

Доступные варианты:
  • 2 спальни
  • Площади: от 82 до 85 кв.м

Стоимость: от 12 910 000 THB / 374 400 USD

Проект Skypark Elara Lakelands — это новая резиденция от Banyan Group, расположенная в премиальной части Laguna Phuket на берегу живописного озера, в районе Банг Тао.

Регион: Phuket

Район: Bangtao

Тип недвижимости: Квартира

Спальни: 2 спальни

Основные особенности проекта
Фото комплекса
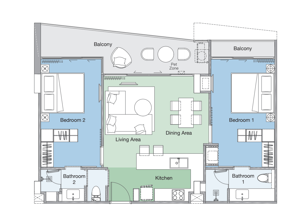
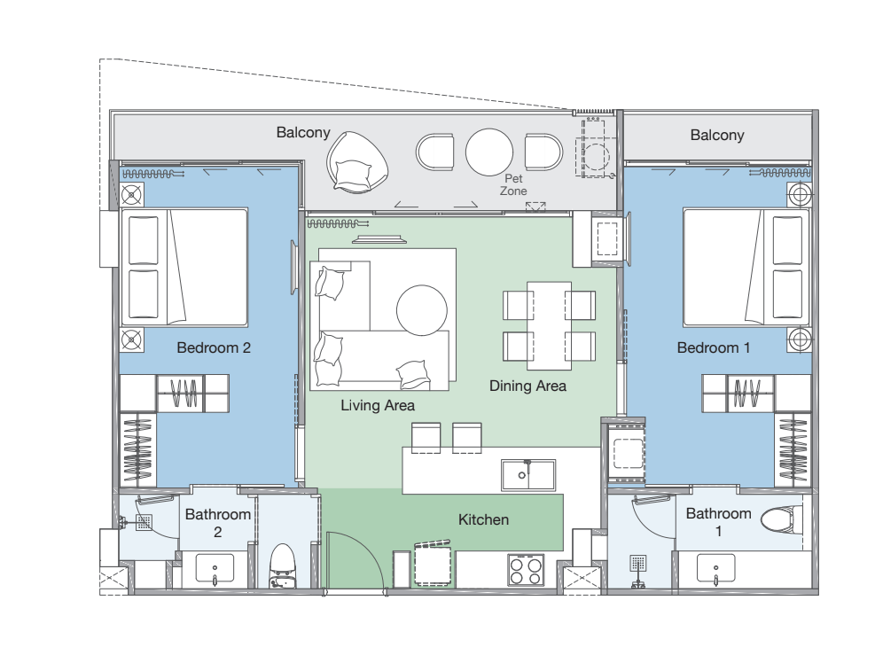
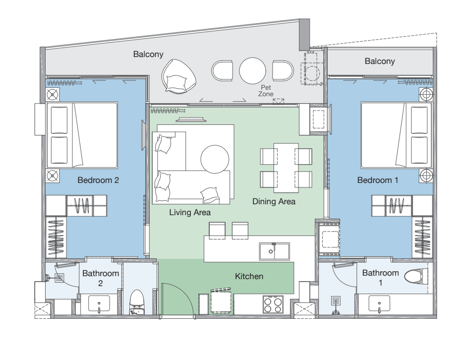
Планировка
Карта

Основные особенности проекта

Проект Skypark Elara Lakelands — это новая резиденция от Banyan Group, расположенная в премиальной части Laguna Phuket на берегу живописного озера, в районе Банг Тао. Это сердце самого благоустроенного кластера на острове, где сочетаются приватность, экология и городской комфорт.

Skypark Elara — это образец современного курортного стиля жизни с акцентом на природу, спокойствие и качество. Пространство вокруг комплекса спроектировано так, чтобы каждый день можно было проводить на свежем воздухе: прогулочные и велосипедные дорожки, озеленённые зоны отдыха, приватные парки и лаунжи с видом на воду.

Инфраструктура проекта включает:
– Озеро с пешеходной зоной
– Панорамный инфинити-бассейн на крыше
– Современный тренажёрный зал и студия йоги
– Просторный коворкинг и переговорные комнаты
– Детская площадка и семейная зона отдыха
– Лаунж на крыше и клуб владельцев
– Ресепшен и консьерж-сервис
– Закрытая территория с охраной и видеонаблюдением
– Парковка и зарядные станции для электромобилей
– Встроенная система управления арендой от Laguna

Все квартиры — с панорамными окнами, балконами и продуманными планировками. Некоторые виды резиденций имеют увеличенную жилую площадь, угловые окна или рабочую зону.

До пляжа Банг Тао — около 10 минут пешком, при этом рядом расположены рестораны, бутики, супермаркеты, гольф-поле Laguna Golf, международные школы и SPA-комплексы.

Skypark Elara — это сбалансированный выбор для жизни, отдыха и аренды с высоким уровнем управления, локацией в премиальном районе и узнаваемым именем застройщика.

Фото комплекса







Планировка



Похожие предложения